Elegant Georgian-inspired home secures planning approval
Maresfield, East Sussex
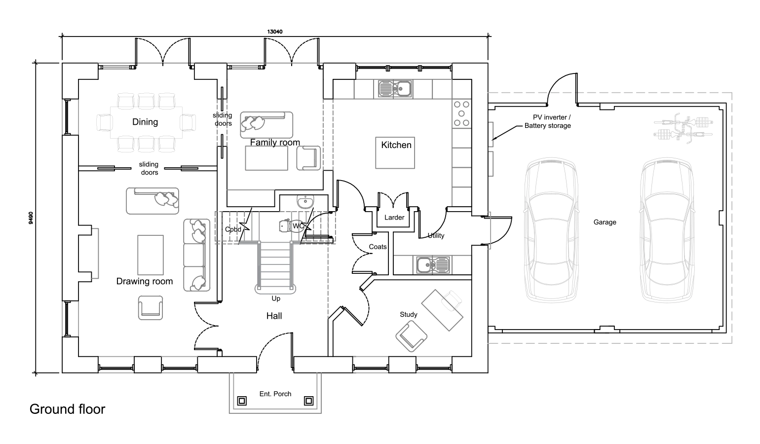
Our client wanted to secure planning permission for a new build on a plot of their land with a design of a large Georgian inspired family home. We achieved planning permission with a design for a five bedroom house with double garage.
The new home featured a red brick and flint first facade, red clay tiles for the roof and a timber porch. Solar panels were added to the roof along with electrical charging points in the garage.
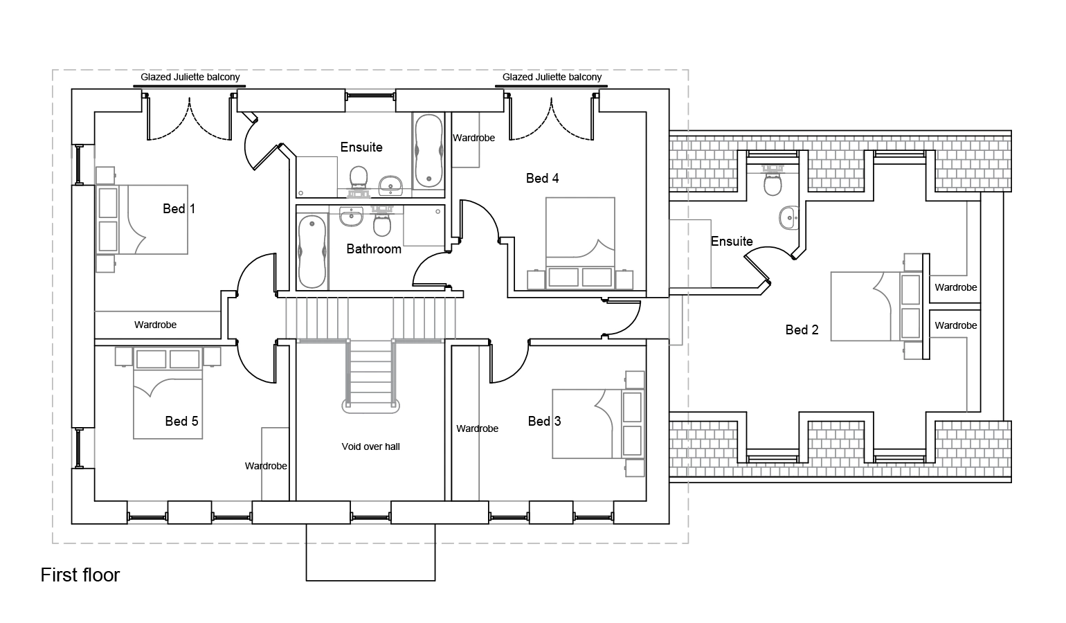
The large entrance hall featured a two storey atrium and led to an open plan living space with kitchen, lounge and dining area, a separate study as well as a large drawing room. The first floor contains five double bedrooms and three bedrooms.




