New homes on a former car park
Slough, Berkshire
Overview
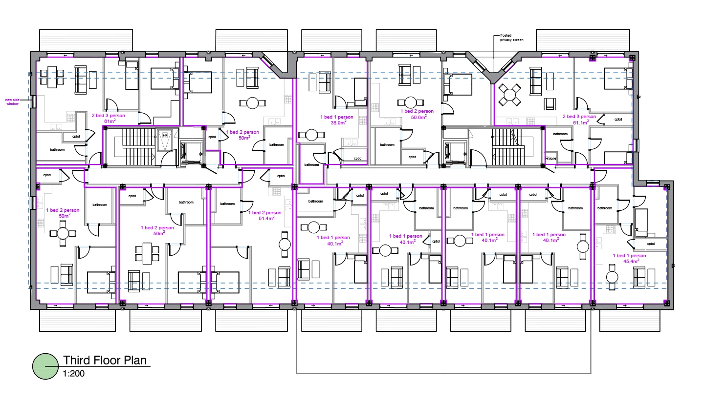
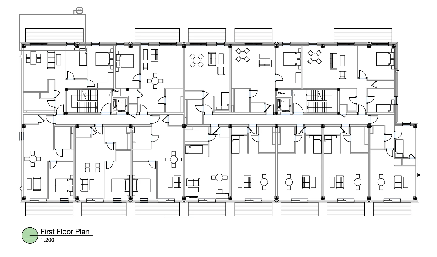
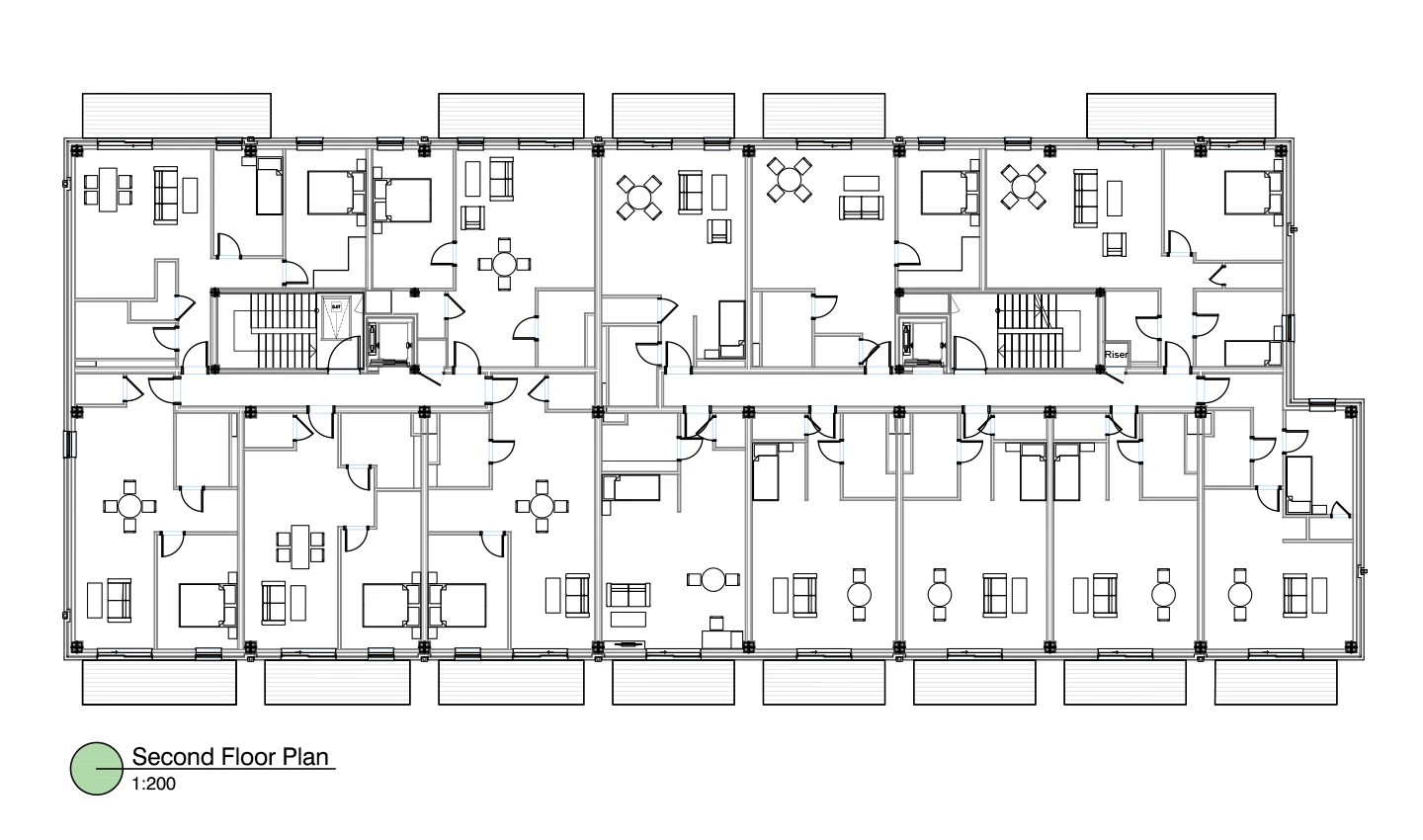
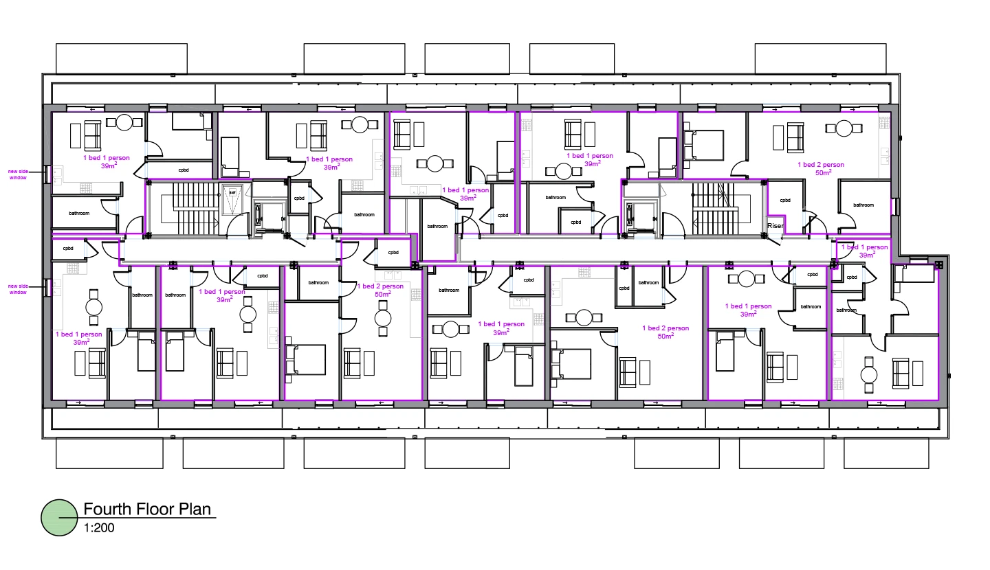
On a disused car park, we shaped a calm, neighbourly development that brings much-needed homes to the local community. The proposal delivers 51 flats in total, 45 one bedroom, and 6 two bedroom apartments.
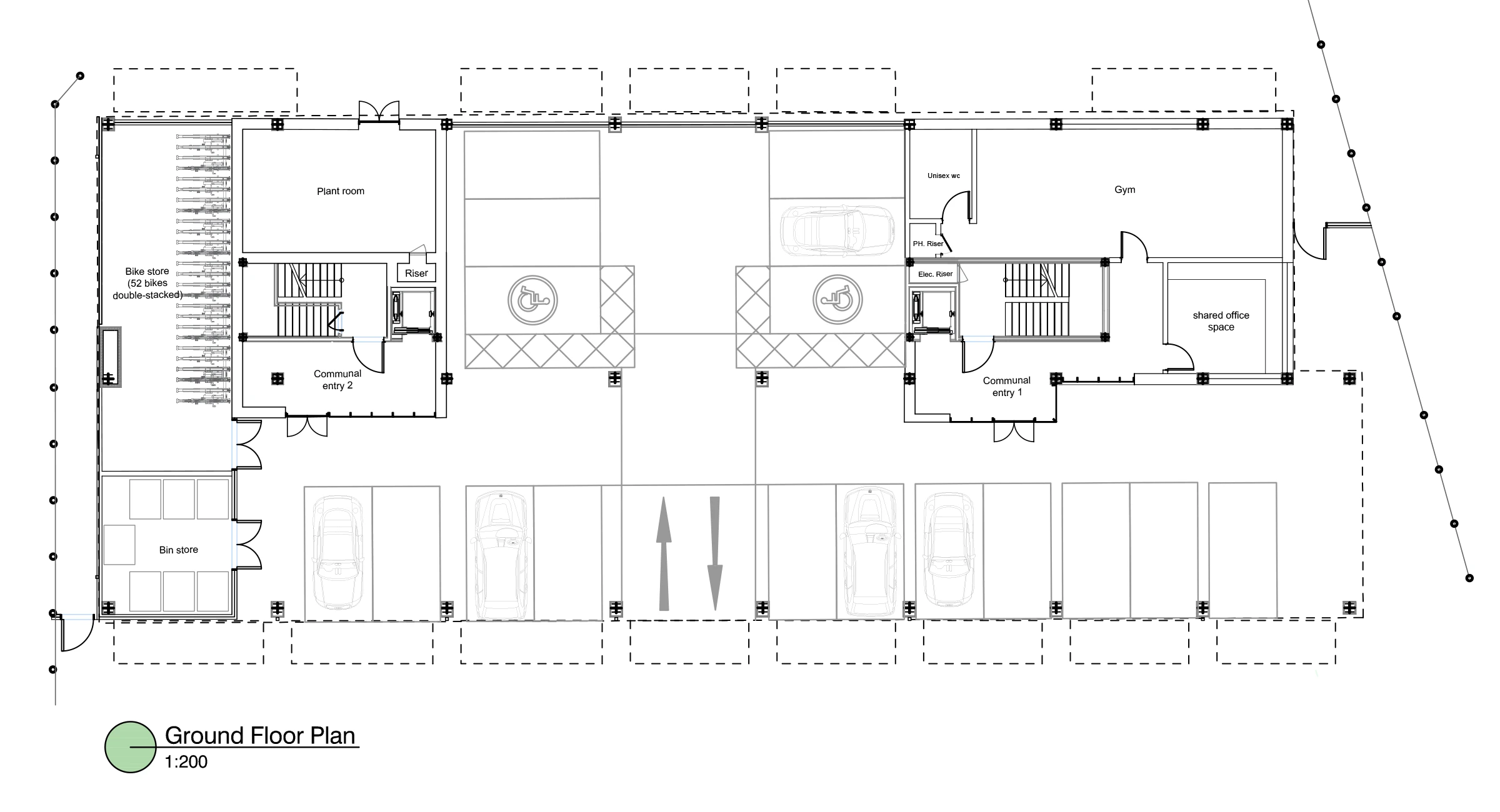
Residents share a landscaped courtyard, a gym, a co-working space and secure cycle storage for 52 bikes. Parking is provided on site with 44 spaces and soft planting to reduce the visual impact.
The challenge
- Turn a hard-surfaced plot into a place people enjoy living in
- Add homes responsibly while respecting the scale of the street
- Balance car parking, cycle storage and shared outdoor space
- Improve on a previously consented scheme without overloading the site
The vision
Create a considered residential address with a clear front door, generous planting and sensible amenities. Prioritise walkability and bikes. Keep cars organised and discreet. Make the outdoor spaces useful all year with good lighting, durable surfaces and planting that matures well.
The solution
Homes mix and layout
- 51 homes in total, up from 37 on the earlier consent, to meet local demand
- A balanced unit mix so single residents, couples and small families all fit
- Stacked cores and efficient plans to maximise daylight and privacy
Green spaces and movement
- A shared landscaped courtyard with seating to encourage everyday use
- Planting that softens edges and screens parking
- A secure bike store for 52 cycles close to the main entrance
- 44 parking spaces arranged to keep the courtyard calm and green
Useful shared amenities
- A gym for residents so daily health habits are simple
- A shared office space for quiet work close to home
- Clear wayfinding, practical lighting and durable finishes for low upkeep
Sustainability and comfort
- Fabric-first envelope with high performance glazing and insulation
- Orientation and window design that favour natural light and passive gains
- Provision for EV charging and water-efficient landscaping
Proposed materials
- Brick as the primary facade for longevity and a calm civic presence
- Recessed entrances with robust, warm-toned detailing
- Courtyard finishes in permeable paving with native planting and simple timber seating
The outcome
A neighbourly place with a clear identity. The scheme adds 14 more homes than the previous consent while improving open space and amenities. The courtyard feels green rather than car-led. Residents have places to sit, to work and to exercise. Everyday life is easier because storage, circulation and access are thoughtful rather than an afterthought.
Why it works
- Right density in the right place: The increase from the consented scheme is matched by better planning, more planting and useful shared spaces.
- People-first outdoor space: Seating, shade and planting make the courtyard somewhere to spend time rather than cut through.
- Balanced mobility: Cycling is encouraged with secure storage. Cars are present yet visually quiet.
- Simple, durable architecture: Brick, clear openings and tidy junctions reduce maintenance and age well.
Looking ahead
As the planting matures, the courtyard will feel even calmer. The amenity spaces can adapt to residents’ needs over time. The scheme turns a car park into a lived-in address that supports daily routines and community life.
